Ассортимент и экспертиза качества цементов
Цементом называется гидравлическое вяжущее вещество, которое после затворения водой и предварительного затвердевания на воздухе, продолжает твердеть как в воде, так и на воздухе, сохраняя и наращивая свою прочность.
Целью данной курсовой работы является изучение ассортимента и экспертизы качества цементов. Характеристика ассортимента цементов и расчет потребности в вяжущем и складских помещениях на заводе КСМ-10, г. Ростова-на-Дону. используемые в производстве. Изучение классификации цементов на основе портландцементного клинкера. Будут рассмотрены основные показатели качества цементов, сопроводительные документы при поставке. Будут разработаны условия транспортирования, приемки и хранения вяжущего. Будет составлен план лаборатории по испытанию вяжущего и ее оснащенность, контрольные карты, паспорт качества и маркировка цемента.
1. Общие положения
1.1 Ассортимент и классификация цементов на основе портландцементного клинкера
Минеральными вяжущими веществами называют порошкообразные материалы, образующие при смешивании с водой пластичную удобообрабатываемую массу, затвердевающую со временем в камневидное прочное тело. В зависимости от условий твердения различают вяжущие материалы: воздушные, гидравлические, кислотоупорные и автоклавного твердения. Каждую из этих групп в свою очередь делят на подгруппы в соответствии с составом и основными свойствами отдельных вяжущих веществ.
Воздушными вяжущими веществами называют материалы, способные схватываться, твердеть, превращаться в камневидное тело и длительно сохранять прочностные характеристики только в воздушной среде.
Гидравлическими вяжущими веществами (цементами) называют материалы, способные при затворении водой, после предварительного затвердевания на воздухе, продолжать твердеть в воде, сохраняя и увеличивая свою прочность.
Кислотоупорные вяжущие вещества после затвердения на воздухе способны длительное время сохранять прочность при воздействии минеральных кислот.
Вяжущие вещества автоклавного твердения превращаются в камень только при автоклавной обработке при давлении насыщенного пара 0.9-1.3 МПа и температуре 167-198В°С.
Таблица.1.Классификация цементов по основным признакам
| Признак классификации | Вид цементов |
| 1 | 2 |
| По назначению | - общестроительные - специальные |
| По виду клинкера | - на основе клинкера - портландцементного - глиноземистого - сульфоферритного - высокоглиноземистого - сульфоалюминатного |
| По вещественному составу | - чистоклинкерные (бездобавочные) - с минеральными добавками |
| По прочности на сжатие | - цементы классов 22,5 32,5 42,5 52,5 - цементы марок М200 М300 М400 М500 М550 М600 - цементы без нормирования прочности на сжатие |
По скорости твердения (только общестроительные) | - нормальнотвердеющие тАУ с нормированием прочности в возрасте 2 (7) и 28сут. - быстротвердеющие тАУ с нормированием прочности в 2 и 28сут. |
| По срокам схватывания | - медленносхватывющиеся тАУ с нормируемым сроком начала схватывания более 2 ч. - нормальносхватывающиеся тАУ с нормируемым сроком начала схватывания от 45мин до 2ч - быстросхватывающиеся тАУ с нормируемым сроком начала схватывания менее 45мин. |
Портландцемент тАУ это порошкообразный материал, получаемый совместным помолом портландцементного клинкера и иногда минеральных добавок.
Клинкер тАУ это продукт обжига до спекания портландцементной сырьевой шихты, состоящей в основном из силикатов кальция, алюминатов кальция и алюмоферитов кальция.
Ассортимент цементов на основе портландцементного клинкера
1. Портландцемент с минеральными добавками - получают путём совместного помола портландцементного клинкера с активной минеральной добавкой. Активными минеральными добавками являются природные(диатомит, трепел, опока, глиежи, туф, пемза, трасс) или искусственные вещества(топливные золы и шлаки, нефелиновый шлам и др.), которые при смешивании в тонкоизмельчённом виде с воздушной известью и затворении водой образуют тесто, способное после твердения на воздухе продолжать твердеть и под водой.
2. Шлакопортландцемент - гидравлическое вяжущее вещество, твердеющее в воде и на воздухе, получается путём совместного тонкого помола клинкера и гранулированного доменного шлака с необходимым количеством гипса. Шлакопортландцемент отличается умеренной водопотребностью, высокой воздухостойкостью и морозостойкостью, обладает повышенной стойкостью к воздействию минерализованных вод. Обладает специфическим свойством - низкая экзотермия.
3. Сульфатостойкий портландцемент - отличаются повышенной устойчивостью цементного камня к агрессивному воздействию сульфатных вод. Сульфатостойкий портландцемент тАУ изготовляют из клинкера нормированного минералогического состава: содержание С3А не должно превышать 5 %, С3S - 50%, С3А + С4АF тАУ 22%. Сульфатостойкий портландцемент отличается низкой экзотермией из-за низкого содержания С3А и С3S.
4. Быстротвердеющий портландцемент (БТЦ) тАУ это портландцемент с минеральными добавками, отличающийся интенсивным нарастанием прочности в начальный период твердения. Повышенная прочность БТЦ в начальные сроки твердения достигается правильным подбором минералогического состава клинкера, увеличением дозировки гипса, повышением тонкости помола цемента. БТЦ предназначен для изготовления сборных железобетонных конструкций и изделий в заводских и полигонных условиях, а также для скоростного строительства.
5. Цементы с поверхностно-активными добавками тАУ получают путём совместного помола портландцементного клинкера, гипса и небольшого количества (0,1 тАУ 0,3% от массы цемента) добавок ПАВ. Основное назначение ПАВ тАУ повышение пластичности цементного клинкера, либо к снижению водопотребности смеси и расхода цемента при сохранении заданной подвижности и проектной марки цемента. Главным недостатком цемента является замедление сроков схватывания в начальные сроки.
6. Пластифицированный портландцемент - получают путём совместного помола клинкера с гидрофильно-пластифицирующей добавкой (0,15 тАУ 0,25% массы цемента) лигносульфонатов кальция, которые получают при сульфиной варке целлюлозы.
7. Гидрофобный портландцемент тАУ получают путём совместного помола клинкера и 0,1 тАУ 0,3% мылонафта, асидола, окисленного петралатума, синтетических жирных кислот, их кубовых остатков и других гидрофибизирующих поверхностно-активных добавок. Цемент обладает замедленным сроком схватывания и меньшей прочностью по сравнению с обычным портландцементом.
8. Белые портландцементы отличаются от остальных видов ПЦ цветом, поэтому весь технологический процесс получения таких цементов подчинен требованию обеспечения белизны. По степени белизны цементы разделяют на три сорта: БЦ-1, БЦ-2, БЦ-3 с коэффициентом яркости соответственно 80,75 и 68 (коэффициент яркости обычного ПЦ тАУ 20тАж40). Выпускают цементы М400 и М500 двух видов тАУ белый портландцемент и белый портландцемент с минеральными добавками.
9. Цветные портландцементы получают путем совместного тонкого измельчения белого или обычного клинкера с красящими пигментами. По ГОСТу цветной портландцемент должен содержать не менее 80% клинкера, не более 6% диатомита и не более 15 % минерального синтетического или природного пигмента или не более 0,5% органического пигмента.
10. Тампонажные портландцементы предназначены для тампонирования нефтяных и газовых скважин. К ним предъявляются жесткие технические требования. Цементный раствор должен обладать высокой текучестью, обеспечивающей возможность его свободного закачивания и проникновения в затрубное пространство.
11. Пуццолановый портландцемент тАУ гидравлическое вяжущее вещество, твердеющее в воде и во влажных условиях, получаемое в результате совместного помола портландцементного клинкера нормированного минералогического состава с содержанием СА до 8%, гипса и активных минеральных добавок . Выпускают две марки пуццоланового портландцемента: М300 и М400. Морозостойкость и атмосферостойкость бетонов на пуццолановом портландцементе ниже, чем на портландцемент; наиболее стоек в сульфатных водах, так как в продуктах твердения нет свободного гидроксита кальция и трехкальциевого гидроалюмината, также отличается повышенной стойкостью в пресных водах.
1.2 Характеристика используемых цементов на заводе КСМ тАУ 10, г. Ростова-на-Дону
ПЦ 300 тАУ Д0 тАУ портландцемент марки 300, бездобавочный. Производство бетонных и железобетонных сборных и монолитных конструкций из бетонов при введении суперпластификаторов. Не допускается для замены сульфатостойких цементов. Не рекомендуется для строительных растворов.
ССПЦ 500 тАУ Д20тАУ сульфатостойкий портландцемент, марки 500 с содержанием минеральных добавок 20%. Обладает: средним темпом твердения, высокой атмосферостойкостью, средней морозостойкостью, высокой сульфатостойкостью, средней деформации усадки. Область применения: производство бетонны х и железобетонных монолитных и сборных конструкций и изделий, работающих в условиях высокоагрессивной среды. Не рекомендуется для бетонов с маркой по морозостойкости F200 и выше без воздухововлекающих добавок, для сироительных растворов.
ПЦБ 1 тАУ 500 тАУ Д20 тАУ портландцемент белый 1-го сорта, марки 500, с 20% минеральных добавок. Используется для производства декоративных (белых, светлых) бетонов и растворов.
2. Расчетная часть
2.1 Расчет потребности вяжущих в процессе производства, от момента их поставки на предприятие до момента изготовления бетонной смеси
Расход в сутки тАУ это потребность в вяжущем на момент подачи в бетономешалку без учета потерь на предшествующих стадиях. Поэтому необходимо рассчитать потребность в вяжущем с учетом потерь. Табл.3.
Таблица.2.
| Естественная убыль | Технологическая операция | ПЦ 300 тАУ Д0 | ССПЦ 500 тАУ Д20 | ПЦБ 1 тАУ 500 тАУ Д20 |
| 0,4 | Доставка | 45,44 | 30,28 | 14,13 |
| 0,05 | Взвешивание | 45,26 | 30,16 | 14,08 |
| 0,05 | Транспортирование | 45,24 | 30,15 | 14,07 |
| 0,15 | Перегрузка | 45,22 | 30,14 | 14,06 |
| 0,2 | Складирование | 45,15 | 30,09 | 14,04 |
| 0,1 | Подача на БСУ | 45,06 | 30,03 | 14,02 |
| 0,05 | Дозирование | 45,02 | 30,02 | 14,01 |
| 45 | 30 | 14 | ||
Из этого следует, что ПЦ 300тАУД0 необходимо поставлять 45,44т., а не 45 т.; ССПЦ 500 тАУ Д20 тАУ 30,28т., а не 30т.; и ПЦБ 1 тАУ 500 тАУ Д20 тАУ 14,13т., а не 14т.
2.2 Расчет потребности в цементах по годовой производительности
Годовая производительность для ПЦ 300тАУД0: Q = 45.15 В· 265 = 11964,75 т
ССПЦ 500 тАУ Д20: Q = 30.09 В· 265 = 7973,85 т
ПЦБ 1 тАУ 500 тАУ Д20
: Q = 14.04 В· 265 = 3720,6 т
2.3 Определение количества и объема складских емкостей
Для определения объема складских емкостей необходимо определить нормативный запас хранения (в сутках) вяжущего, в зависимости от его вида.
Расчет запаса цемента на складе. Табл.4.
Таблица.4.
| Нормативный запас цементов | Вид цементов | |||||
| ПЦ 300тАУД0 | ССПЦ 500 тАУ Д20 | ПЦБ 1 тАУ 500 тАУ Д20 | ||||
| сут. | 8сут. | сут. | 8сут. | сут. | 30сут. | |
7-10 30 | 45,15 | 361,2 | 30,09 | 240,72 | 14,04 | 421,2 |
Расчет объема емкостей для хранения цементов по формуле:
Vскл = (Qn * n * k)/(365 * pц), где
Qn тАУ годовая производительность, м³/год
n тАУ продолжительность хранения в сутках
k тАУ коэффициент заполнения емкостей
pц тАУ расчетная плотность цемента, т/ м³
1. ПЦ 300тАУД0
Vскл = (45,15 В· 265 В· 8 В· 0,9) / (365 В· 1) = 236,02 м³
2. ССПЦ 500 тАУ Д20
Vскл = (30,09 В· 265 В· 8 В· 0,9) / (365 В· 1) = 157,3 м³
3. ПЦБ 1 тАУ 500 тАУ Д20
Vскл = (14,04 В· 265 В· 30 В· 0,9) / (365 В· 1) = 275,22 м³
Qn общ = 11964,75 + 7973,85 + 3720,6 = 23659,2. Годовой производительность меньше 100 тыс, то число емкостей для хранения цемента не менее 4.
Общий запас цементов = 361,2 + 240,72 + 421,2 = 1023,12т.
Из ряда по одновременной вместимости цемента в силосы 240, 360, 480, 720, 1100, 1700, 2500, 4000, выбираем 1100.
Для расчета вместимости в каждый силос тАУ 1700/4. получаем вместимость каждого силоса 425т. Распределим силосы с учетом того, что цементы различных марок нельзя перемешивать.
1 силос - ПЦ 300тАУД0 тАУ 361,2 т.
2 силос - ССПЦ 500 тАУ Д20 тАУ 240,72 т.
3 силос - ПЦБ 1 тАУ 500 тАУ Д20 тАУ 421,2 т.
4 силос тАУ резервный.
2.4 Разработка условий транспортирования, приемки и хранения получаемого предприятием вяжущего
Транспортирование цементов осуществляется железнодорожным транспортом с соблюдением Правил перевозок грузов. Поставляется цемент без упаковки в специализированных вагонах-цементовозах. Транспортное средство должно быть очищено и исправно. При транспортировании цемент должен быть защищен от воздействия влаги и загрязнения.
Приемку цемента осуществляет служба технического контроля изготовителя. Партия цемента может быть принята и поставлена, если результаты испытаний по всем показателям соответствуют требованиям нормативного документа.
В случае обнаружения при приемосдаточных испытаниях цемента малозначительного дефекта, не превышающего по величине предельного значения, партию принимают, но учитывают ее как дефектную при оценке общего уровня качества. Общее количество партий с малозначительными дефектами, принятых в течение квартала. Не должно быть более 5% общего количества партий данного вида цемента, поставленных за этот период.
Каждая партия цемента или ее часть, поставляемая в один адрес, должна сопровождаться документом о качестве, в котором указывают:
- наименование изготовителя, его товарный знак и адрес
- наименование или условное обозначение цемента по нормативному документу
- номер партии и дату отгрузки
- вид и количество минеральной добавки в цементе
- класс прочности, марку цемента
- нормальную густоту цементного теста (для общестроительных цементов)
- среднюю активность цемента при пропаривании за предыдущий месяц для общестроительных цементов)
- значение удельной эффективной активности естественных радионуклидов в цементе по результатам периодических испытаний
- номер вагона
- гарантийный срок соответствия цемента требованиям нормативного документа, сут.
- знак соответствия при поставке сертифицированного цемента
- обозначение нормативного документа.
Если цемент обладает признаками ложного схватывания, то это должно быть указано в документе о качестве.
Маркировка должна быть отчетливой содержать:
- наименование изготовителя и его товарный знак
- условное обозначение цемента или его полное наименование в соответствии с нормативными документом
- класс прочности (марку) цемента
- обозначение нормативного документа, по которому поставляют цемент
- среднюю массу нетто цемента в упаковке или в транспортном средстве
- знак соответствия при поставке сертифицированного цемента
Каждое транспортное средство снабжают ярлыком, в котором указывают дополнительно номер партии цемента и дату отгрузки. Ярлык прикрепляют в доступном месте.
Также каждая партия должна сопровождаться сертификатом, накладной. Приемку осуществляют на разгрузочной площадке.
Храниться цемент должен раздельно по видам и по маркам, в силосах.
2.5 Определение основных показателей качества цементов
Таблица.5.Показатели качества цементов.
| Вид цемента | ПЦ 300тАУД0 |
| Наименование показателя | Величина показателя по ГОСТ |
Активные минеральные добавки: - доменные гранулированные и электротермофосфорные шлаки - осадочного происхождения, кроме глиежа - прочие активные, включая глиеж | Не допускается |
Предел прочности: - при изгибе (28сут) - при сжатии (28сут) | 4,4 (45)МПа 29,4 (300)МПа |
Сроки схватывания: - начало схватывания (НС) - конец схватывания (КС) | Не ранее 45мин Не позднее 10ч |
| Тонкость помола (удельная поверхность) | При просеивании остаток менее 15% на сите № 008 |
Предел прочности при сжатии после пропаривания: - 1 группа - 2 группа - 3 группа | Более 23 (230) МПа От 20 до 23 (от 200 до 230) МПа Менее 20 (200) МПа |
| Вид цемента | ССПЦ 500 тАУ Д20 |
По вещественному составу: Гранулированного доменного шлака, электротермофосфорного шлака, % по массе цемента | От 10 до 20 |
Минералогический состав клинкера: (% по массе) Содержание трехкальциевого силиката Содержание трехкальциевого алюмината Содержание трехкальциевого алюмината и четырехкальцевого алюмоферита Содержание оксида алюминия Содержание оксида магния | 50 5 22 5 5 |
| Содержание SO3, % по массе | 3,0 |
Предел прочности: При изгибе, 28 суток При сжатии, 28 суток | 5,9 (60) 49,0 (500) |
Сроки схватывания: - начало - конец | Не ранее 45 мин. Не позднее 10ч |
| Удельная поверхность (тонкость помола) | Не менее 250 м²/кг |
| Гидрофобность | Цемент не впитывает воду в течение 5 мин от момента нанесения капли воды на его поверхность |
| Равномерность изменения объема | Обеспечивается при кипячении в воде |
| Вид цемента | ПЦБ 1 тАУ 500 тАУ Д20 |
| Белизна | Коэффициент отражения не менее 80% |
| Содержание активных минеральных добавок (АДМ) и добавок наполнителей | АДМ осадочного происхождения не более 10%, наполнители не более 10%, суммарное до 20% |
| Специальные добавки | Не более 2% массы цемента |
| Технологические добавки, не ухудшающие строительно тАУ технические свойства цементов | Не более 1% массы цемента |
| Пластифицирующие или гидрофобизирующие добавки | Не более 0,5% массы цемента |
| Коэффициент вариации прочности 28сут. | Не более 7% |
| Содержание андигридной серной кислоты | Не более 3,5% по массе |
| Содержание оксида магния | Не более 4% по массе |
| Закиси железа | Не более 0,5% по массе |
Сроки схватывания: - начало - конец | Не ранее 45 мин Не позднее 10ч |
| Тонкость помола | Остаток на сите №008 не более 12% |
| Признаки ложного схватывания | Не допускаются |
| Предел прочности на сжатие | 49,0МПа |
2.6 Составление плана лаборатории по испытанию вяжущих, разработка ее оснащенности
Таблица.6.Оснащенность лаборатории испытательным оборудованием.
| Вид испытаний | НТД на испытание | Необходимое оборудование |
| 1. Определение сроков схватывания | ГОСТ 310.3-76 | Прибор Вика с иглой, сферическая чаша, весы общего назначения, лопатка, часы, влажная ткань, нож |
| 2. Определение нормальной густоты | ГОСТ 310.3-76 | Прибор Вика с иглой, сферическая чаша, весы общего назначения, лопатка, часы, влажная ткань, нож |
| 3. Определение тонкости | ГОСТ 310.2-76 | Сито с сеткой №008 по ГОСТ6613, прибор для механического или пневматического просеивания цемента, весы, лопатка, часы |
| 4. Определение тепловыделения | ГОСТ 310.2-5 | Калориметр изотермическая теплопроводящий ВлЦЕМЕНТ ТГЦ 1МВ» по соответствующей нормативно тАУ технической документации. Весы лабораторные 3-го класса точности с наибольшем пределом взвешивания 200г. Термометр 1-й группы по ГОСТ27544 Гигрометр по ГОСТ 12997. Вода дистиллированная по ГОСТ 6709 |
| 5. Определение водоотделения | ГОСТ 310.2-6 | Фарфоровый стакан вместимости 1 дм³ Металлический шпатель Весы квадратные ВЛКТ-2кг-М Градуированный стеклянный цилиндр вместимостью 500 см³ по ГОСТ 1770 |
| 6. Определение предела прочности при изгибе и сжатии | ГОСТ 310.4-81 | Мешалка для перемешивания цементного раствора Чаша и лопатка Встряхивающий столик и форма-конус Штыковка Формы для изготовления образцов тАУ балочек Насадка к формам Вибрационная площадка Прибор для испытания на изгиб образцов-балочек Пресс для определения предела прочности при сжатии Пластинки для передачи нагрузки Пропарочная камера Влажная ткань Масло машинное |
| 7. Определение равномерности изменения объемов цементов | ГОСТ 310.3-76 | Прибор Вика с пестиком Кольцо к прибору Вика Мешалка для приготовления цементного теста Сферическая чаша Весы общего назначения Лопатка Часы Влажная ткань Нож Автоклава с рабочем давлением не менее 2,1 МПа Бачок для испытания кипячением Ванна с гидравлическим затвором |
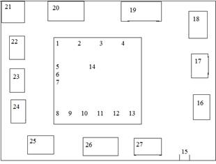
План лаборатории
Рисунок 1.

1 тАУ прибор Вика
2 тАУ сферическая чаша
3 тАУ лопатка
4 тАУ часы
5 тАУ нож
6 тАУ сито с сеткой №008
7 тАУ термометр
8 тАУ гигрометр
9 тАУ металлический шпатель
10 тАУ фарфоровый стакан
11 тАУ форма для изготовления цементных балочек
12 тАУ пластинки для передачи нагрузки
13 тАУ мокрая тряпка
14 тАУ весы
15 тАУ вход в лабораторию
16 тАУ весы общего назначения
17 тАУ прибор для механического просеивания цемента
18 тАУ калориметр
19 тАУ санитарный узел
20 тАУ мешалка для перемешивания цементного раствора
21 тАУ встряхивающий столик
22 тАУ вибрационная площадка
23 тАУ пресс
24 тАУ пропарочная камера
25 тАУ лабораторная дробилка
26 тАУ сушильный шкаф
27 тАУ автоклав
2.7 Составление контрольных карт, журнала контроля, составление паспорта качества, маркировка цементов
Карты входного контроля качества цемента составляются по форме, приведенной в таблице 7.
Таблица 7 тАУ Карта входного контроля качества цемента