Многосекционные жилые дома. Композиционное решение рынков и торговых центров
Содержание
1. Многосекционные жилые дома
2. Объемно-планировочная структура основных типов многосекционных жилых зданий
Торговый центр жилого района
Крытые рынки
Эркеры
Подвесные потолки
1. Многосекционные жилые дома
Секционные жилые дома - это здания, состоящие из нескольких однотипных по структуре планировки блок секций, различающихся по этажности, протяженности и конфигурации.
Секция - это часть жилого дома, квартиры которой имеют выход на одну лестничную клетку общего пользования и которая отделена от других частей здания глухой стеной или сплошной межквартирной перегородкой (двойная с воздушным зазором). Планировочное решение секции зависит от числа квартир, выходящих на поэтажную лестничную площадку. Принимая во внимание, что многочисленные семьи планируется расселить в усадебных и блокированных домах, квартиры в жилых секциях должны быть одно-, двух- и трехкомнатными (для малых и средних по величине семей). Рекомендуется разрабатывать блок-секцию с тремя или четырьмя квартирами на этаже. Ориентация квартир должна отвечать требованиям инсоляции - обеспечивать прямое попадание солнечных лучей в одно-, двух - и трехкомнатных квартирах не менее чем в одной комнате. Рациональность решения объема здания во многом определяется и обеспечением минимальных теплопотерь. Это достигается за счет увеличения ширины корпуса, расположения в средней части помещений, не нуждающихся в естественном освещении, примыканием к наружным стенам узкой стороны жилой комнаты. В без лифтовых многосекционных домах малой и средней этажности (2-5-этажных) применяются чаще всего двухмаршевые лестницы, размещаемые в середине секции или со стороны двора (если это совпадает с северной ориентацией) или с северной стороны дома - для увеличения количества жилых комнат, выходящих на благоприятную сторону горизонта. Чаще всего жилые секции проектируются на основе прямоугольной модульной координационной сетки, что в большей степени соответствует естественной форме элементов квартиры (жилых и подсобных помещений, лестничных маршей), технологии более экономичного возведения зданий и т.д. Однако творческое сочетание простых в плане блок секций может привести к созданию разнообразных по композиционному строю и выразительности жилых комплексов. Для этого применяют как минимум три основных типа секций: рядовые, торцевые и поворотные.
Рядовая секция - это секция, как правило, прямолинейного очертания, находящаяся между двумя другими частями жилого дома.
Торцевые секции располагаются по краям дома. Одна из стен секции должна блокироваться с соседней рядовой секцией. Зачастую торцевая секция повторяет планировку рядовой секции с изменением конструкции торцевой наружной стены. Она может быть глухой или с оконным проемом, лоджиями или балконами.
Поворотные секции применяют для формирования домов сложной конфигурации. Наиболее часто встречаются угловые секции с поворотом на 135 или 90 градусов. Поворотные секции проектируются как рядовыми, так и торцевыми.
Секции различной конфигурации, этажности, числа и типов квартир объединяются в одну серию.
Секции в рамках одной серии разрабатываются на основе однотипных конструктивных и планировочных схем. Например, если принята та или иная конструктивная система несущих элементов, то она должна использоваться во всех секциях. Это важно для оптимизации строительного процесса. Квартиры во всех секциях должны быть с одинаковой степенью комфорта, что достигается за счет применения единого планировочного приема и одинаковой инженерной оснащенности.
2. Объемно-планировочная структура основных типов многосекционных жилых зданий
Многосекционные жилые здания формируются путем блокировки нескольких секций, являющихся элементами объемно-планировочной структуры здания. Секции проектируют рядовыми и поворотными, в том числе с торцевыми окончаниями или без них.
Рядовые секции (в том числе с торцевыми окончаниями) по форме плана бывают прямолинейными, уступообразными, а также усложненной формы (в том числе криволинейной, Т-образной и т.д.).
Поворотные секции (в том числе угловые) позволяют проектировать здание с развитием:
1) в двух направлениях (секции с углами поворота на 90В°, 135В° и др. - угловые секции);
2) в трех направлениях (секции с углами поворота на 90В°, 120В° и др.).
Четырехлучевые секции встречаются довольно редко.
По условиям ориентации по сторонам света и обеспечения инсоляции квартир секции многосекционных жилых зданий проектируются:
универсальной (неограниченной) ориентации;
частично ограниченной ориентации (широтные);
ограниченной ориентации (меридиональные).
Секции имеют неограниченную ориентацию, если квартиры в них обеспечиваются нормативной инсоляцией при любой постановке секции относительно сторон горизонта. Как правило, число одноуровневых квартир на этаже такой секции может составлять одну, две или три.
Секция ограниченной ориентации, как правило, имеет на этаже четыре и более одноуровневых квартиры (или же одноуровневые и многоуровневые). Учитывая потребности инвалидов, пользующихся для передвижения колясками, не рекомендуется проектировать в жилых зданиях перепады уровней между выходами из лестничных клеток и входами в квартиры. Ширину лестниц следует предусматривать с учетом возможности размещения подъемника, перемещаемого наклонно вдоль лестничного марша. В связи с этим минимальная ширина лестничного марша - 1,2 м.
В секционных зданиях может быть устроен выход из квартир первого этажа на придомовую территорию. Приквартирные участки не рекомендуется размещать в местах ввода коммуникаций в жилое здание или над местами транзитного прохода коммуникаций. По числу квартир на этаже получили распространение двух-, трех-, четырехквартирные секции. Композиционное построение объемов многоквартирных жилых домов формируется за счет повторяемости планов этажей одинаковой конфигурации или планов этажей различной конфигурации. Одним из приемов объемно-пространственного построения жилых домов является террасирование их объемов. Террасные жилые дома проектируются как на плоском рельефе, так и на сложном. Террасирование объема жилого дома достигается за счет уменьшения размера комнат по торцам здания или по его фронту, уменьшения числа комнат в квартире, уменьшения числа квартир на этаже или же уменьшения числа этажей в смежных секциях.
В зарубежной практике широко используется прием смещения верхних этажей жилых домов по отношению к нижележащим этажам. При этом часть пространства в нижних этажах часто занимается под элементы общественного обслуживания или гаражи-стоянки.
Энергосберегающие характеристики жилых зданий достигаются за счет:
сокращения площади поверхности наружных стен путем уменьшения изрезанности объема здания;
увеличения ширины корпуса при соблюдении нормативных показателей по освещенности помещений;
увеличения протяженности здания (с учетом оптимизации градостроительных требований);
увеличения суммарной площади квартир на этаже;
применения планировочных элементов, способствующих повышению теплоэффективности жилого дома (в том числе использование лестничных клеток с верхним освещением - в жилых секциях до 3 этажей включительно).
Снижение шума в жилых домах может осуществляться:
применением специальной шумозащищенной планировки с преимущественной ориентацией на магистральную улицу подсобных и дополнительных помещений квартир, общих комнат 3-комнатных квартир, а также внеквартирных помещений (лестничных клеток);
конструктивных средств шумозащиты наружных ограждений зданий;
окон и балконных дверей с повышенными звукоизолирующими свойствами;
технических средств шумозащиты, в том числе клапанов-глушителей и др. (при обеспечении нормативного воздухообмена в квартире).
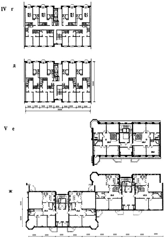
Примеры планировочных решений многосекционных жилых домов различной ориентации
I - рядовая и торцевая секции широтной ориентации; а - план типового этажа;
II - рядовая секция меридиональной ориентации; б - план типового этажа;
III - четырехсекционный жилой дом меридиональной ориентации; в - план типового этажа.
IV - шестиквартирная секция универсальной ориентации с двухуровневыми квартирами; г, д - планы этажей;
V - двухквартирные секции универсальной ориентации; е, ж - планы этажей.


Торговый центр жилого района
Магазины могут располагаться в отдельных зданиях по функциональному признаку (булочная, овощи-фрукты и так далее) и в торговых центрах.
За последние годы более широкое распространение получили торговые центры. Размещение торговых центров и объемно-планировочное решение необходимо предусматривать исходя из функционального назначения, месторасположения торговых предприятий и вида товаров: товары повседневного пользования (хлеб, мясо, рыба, бакалея, молочные продукты и др.) и товары периодического пользования (промтовары, готовое платье, головные уборы, радио и фототовары, велосипеды, парфюмерия и т, п.). Товары первой группы преобладают в магазинах микрорайонов и торговых центрах жилых районов, второй - магазинах торговых центров жилых районов и городов.
Торговый центр жилого района на 45 тыс. жителей:

а) - план первого этажа
б) - план второго этажа
5 - аптека
6 - промтоварный магазин
7 - парикмахерская
8 - предприятия хозяйственно-бытового обслуживания
1 - продовольственный магазин
2 - ресторан
3 - помещение для персонала
4 - отделение связи
Объемно-планировочные решения торговых центров могут быть самые разнообразные: в группе отдельно стоящихВа зданий, расположенных в один ряд; в два ряда, образуя внутреннюю улицу; по периметру торговой площади; в одном здании и т.д.
Однозальный крытый рынок

1 - входной узел
2 - торговый зал
3 - лифты
4 - административно-обслуживающие помещения
При планировке торговых центров необходимо решить такие основные вопросы, как доступ к месту торговли, подъезды и стоянки легкового транспорта, подъезды грузового транспорта, доставляющего товары в магазины, место разгрузки товаров, место для хранения товаров и использованной тары. Надо проектировать здания так, чтобы доставка товаров, ее разгрузка, распаковка были изолированы от потока покупателей. Кооперированные торговые центры компонуют по ячейковой структуре с сеткой колонн преимущественно 6 X 6 или 6 X 12 м. При проектировании целесообразно предусматривать индивидуальные входы в помещения различного назначения - в отделение связи, аптеку или в помещении бытового обслуживания.
Высота торговых залов должна быть 3,3 м при площади до 300 м2, в залах большей площади высоту устанавливают 4,2 м, в подвальных помещениях - 2,7 м, а до выступающих конструкций - не менее 2,4 м.
Состав и площади помещений назначают в соответствии с СИиП II-Л.7-70.
Крытые рынкиОдним из комплексов торговых зданий районных и городских центров являются крытые рынки. Такие торговые предприятия, как крытые рынки, бывают двух типов: рынки для продажи сельскохозяйственных продуктов и комплексные рынки, где есть возможность и продать сельскохозяйственные продукты, и купить необходимые промтовары.
В первом типе рынков места продажи сельскохозяйственных продуктов расположены в центре зала и по периметру здания. В крытых рынках предусматривают торговые места постоянные, занимаемые государственными торговыми предприятиями, и разовые, предназначаемые для продажи товаров колхозами и отдельными лицами.
Торговые места распределяют по зонам: продажа картофеля, овощей, фруктов, ягод, мяса, дичи, рыбы и т.д.
Проходы проектируют различной ширины: основные 4-10 м, боковые 2,5-7 м, поперечные 1,5-5 м. Общую площадь торгового зала рынка устанавливают из расчета 0,5 м2 на одного покупателя, а площадь на одно торговое место принимают от 6 до 13 м2. Температура внутри помещений рынка должна быть зимой не менее +5В°С, летом не более 4-18-20В° С
Композиционное решение рынков - центрическое-компактное, блочное и павильонное. Центрическая композиция более удачна, она требует значительно меньшей площади участка, сметная стоимость зданий меньше на 10-14% и она более экономична и по текущим затратам.
Проектирование залов пространственной безопорной структуры с крупнопролетными покрытиями повышает на 7-10% экономичное использование площадей.
В рынке проектируют служебно-вспомогательные помещения: санитарного обслуживания, административные помещения. Кроме того, должны быть буфеты и туалеты. В помещениях санитарного обслуживания проверяют продукты, поступающие в продажу.
В административно-обслуживающих помещениях продавцы обеспечиваются оборудованием для торговли.
В большинстве рынков имеются подвальные помещения, часто обеспеченные холодильниками для хранения не проданных скоропортящихся товаров.
В рынках второго типа наряду с продажей сельскохозяйственных продуктов продают промышленные товары. На рисунке (см. рис. ниже) в центрально островных рядах торгуют продуктами сельского хозяйства, а в задней части и по окружности располагают магазины промтоваров.
К рынкам должны быть хорошие подходы, не пересекаемые транспортными магистралями, а также подъезды, на площадях перед рынками предусматривают стоянки легковых автомашин.
У крытых рынков необходимо иметь площадки для торговли летом непосредственно с автомашин или с открытых торговых мест.
Объем здания на одно торговое место по анализу ряда типовых проектов колеблется в широких пределах - от 70 до 110 м.